exhibition plan and elevation





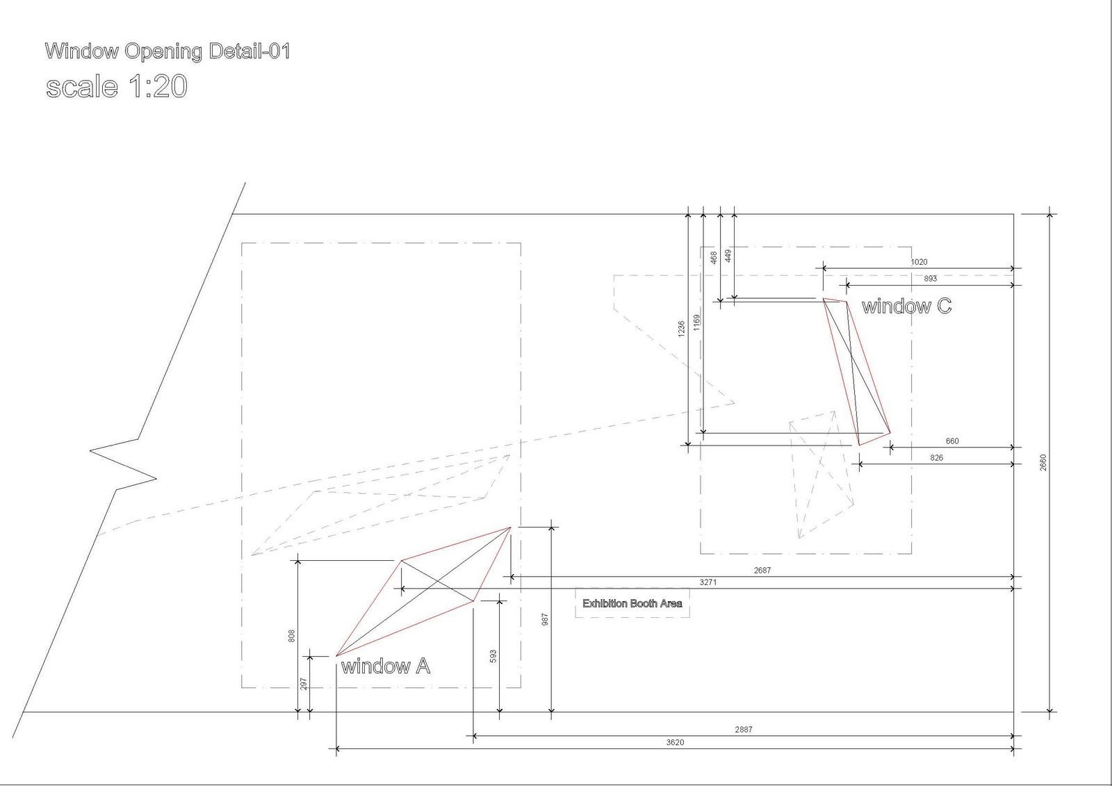
these are the drawing for the window opening on the long wall
kit and chen and ula can refer the elevation for the coordination of drawing the rhino file will be sent via yousendit soon.
Thanks
Jin

Dollar Car Rental Coupons
No comments:
Post a Comment